Beschreibung
Herzlich willkommen in Kehrsatz, hier am Holzmattweg 18 steht es, Ihr neues Zuhause.
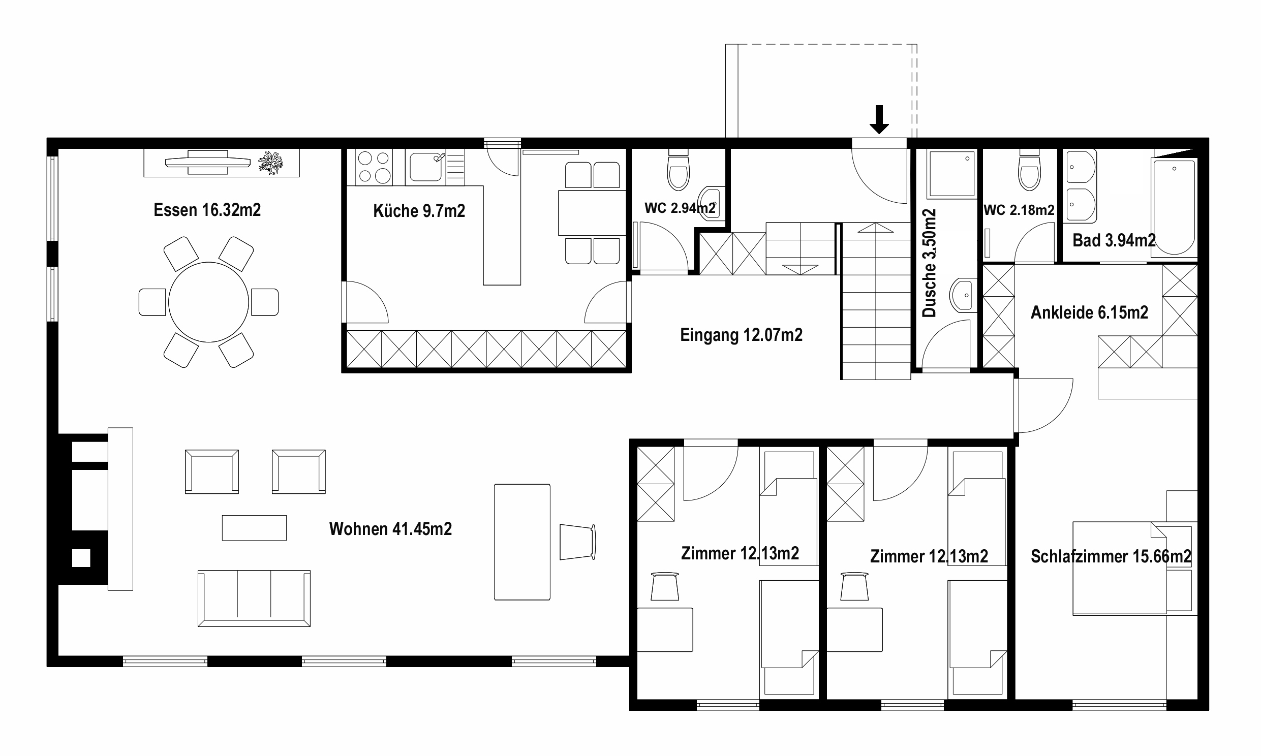
Viel Platz, viel Licht, viel Privatsphäre und noch viel mehr erwartet Sie in unserem äusserst grosszügigen, freistehenden 5.5 Zimmer Einfamilienhaus am Rande von Kehrsatz.
Das Haus mit Baujahr 1980 wurde im Bungalow-Stil erbaut und verfügt mit Erd- und Sockelgeschoss über lediglich zwei Ebenen. Im Sockelgeschoss ist neben einem geräumigen Eingang, die Doppelgarage, der Technikraum mit Heizung (Ölheizung) und Waschküche untergebracht. Zusätzlich befindet sich hier eine äusserst vielseitig nutzbare Einliegerwohnung mit eigener Dusche/WC und einem über 25m2 grossen Zimmer. (ideal als Homeoffice, Hobby-, Gäste- oder zusätzlichem Kinderzimmer)
Im Erdgeschoss befinden sich neben dem grosszügigen Eingang, drei weitere Schlafzimmer, eines davon als "Masterbedroom" mit privater Ankleide, WC und Bad. Die schöne Küche mit viel Platz und das lichtdurchflutete Wohn- und Esszimmer mit über 55m2 Fläche werden Sie begeistern!
Der Garten, welcher direkt an die Landwirtschaftszone grenzt, trägt ebenfalls zum Wohlbefinden in dieser Liegenschaft bei. Rehe und weitere Tiere sind hier nicht selten zu beobachten.
Haben wir Ihr Interesse geweckt? Gerne erzählt Ihnen Herr Howald mehr über diese nicht alltägliche Gelegenheit.
Viel Platz, viel Licht, viel Privatsphäre und noch viel mehr erwartet Sie in unserem äusserst grosszügigen, freistehenden 5.5 Zimmer Einfamilienhaus am Rande von Kehrsatz.
Das Haus mit Baujahr 1980 wurde im Bungalow-Stil erbaut und verfügt mit Erd- und Sockelgeschoss über lediglich zwei Ebenen. Im Sockelgeschoss ist neben einem geräumigen Eingang, die Doppelgarage, der Technikraum mit Heizung (Ölheizung) und Waschküche untergebracht. Zusätzlich befindet sich hier eine äusserst vielseitig nutzbare Einliegerwohnung mit eigener Dusche/WC und einem über 25m2 grossen Zimmer. (ideal als Homeoffice, Hobby-, Gäste- oder zusätzlichem Kinderzimmer)
Im Erdgeschoss befinden sich neben dem grosszügigen Eingang, drei weitere Schlafzimmer, eines davon als "Masterbedroom" mit privater Ankleide, WC und Bad. Die schöne Küche mit viel Platz und das lichtdurchflutete Wohn- und Esszimmer mit über 55m2 Fläche werden Sie begeistern!
Der Garten, welcher direkt an die Landwirtschaftszone grenzt, trägt ebenfalls zum Wohlbefinden in dieser Liegenschaft bei. Rehe und weitere Tiere sind hier nicht selten zu beobachten.
Haben wir Ihr Interesse geweckt? Gerne erzählt Ihnen Herr Howald mehr über diese nicht alltägliche Gelegenheit.
Gemeinde
Kehrsatz, von den Einwohnerinnen und Einwohnern liebevoll "Chäsitz“ genannt, ist eine typische Vorortsgemeinde der Stadt Bern und liegt schön eingebettet zwischen dem Gurten, dem Längenberg und der Aare auf einer Fläche von 444 ha.
Kehrsatz ist eine lebendige Gemeinde im Kanton Bern mit rund 4'200 Einwohnerinnen und Einwohner und befindet sich auf der Achse Bern-Belp-Thun. Über die zwei Bahnhöfe ist man im Viertelstundentakt hervorragend an das attraktive S-Bahnnetz angebunden.
Die Naherholungsgebiete vor der Haustüre mit dem Gurten, dem Längenberg, dem Moos und dem Gebiet an der Aare, laden Sie zum Radfahren, Wandern und vielem mehr ein. Kehrsatz verfügt über ein aktives, kulturelles Leben, welches durch die Kultur Kehrsatz und den Vereinen hochgehalten wird. In diesen gibt es eine grosse Anzahl von Personen, die sich mit viel Begeisterung und ehrenamtlich für ein erst-klassiges Angebot engagieren.
Weitere und ergänzende Informationen zur Gemeinde Kehrsatz finden Sie unter: www.kehrsatz.ch
Kehrsatz ist eine lebendige Gemeinde im Kanton Bern mit rund 4'200 Einwohnerinnen und Einwohner und befindet sich auf der Achse Bern-Belp-Thun. Über die zwei Bahnhöfe ist man im Viertelstundentakt hervorragend an das attraktive S-Bahnnetz angebunden.
Die Naherholungsgebiete vor der Haustüre mit dem Gurten, dem Längenberg, dem Moos und dem Gebiet an der Aare, laden Sie zum Radfahren, Wandern und vielem mehr ein. Kehrsatz verfügt über ein aktives, kulturelles Leben, welches durch die Kultur Kehrsatz und den Vereinen hochgehalten wird. In diesen gibt es eine grosse Anzahl von Personen, die sich mit viel Begeisterung und ehrenamtlich für ein erst-klassiges Angebot engagieren.
Weitere und ergänzende Informationen zur Gemeinde Kehrsatz finden Sie unter: www.kehrsatz.ch
Eigenschaften
Umgebung
- Villenviertel
- Ländlich
- Geschäfte
- Einkaufsmöglichkeiten
- Bank
- Post
- Restaurant(s)
- Bahnhof
- Bushaltestelle
Aussenbereich
- Garten
- Ruhige Lage
Innenbereich
- Wohnküche
- Gäste-WC
- Ankleideraum
- Keller
- Abstellraum
- Cheminée
Distanzen
Öffentliche Verkehrsmittel
490 m
7'
7'
2'
Primarschule
772 m
10'
10'
2'
Restaurants
836 m
11'
11'
3'


















