Beschreibung
An der Hohburgstrasse 33 in Belp vermieten wir per 1. Februar 2025 oder nach Vereinbarung eine schöne und helle 3.5 Zimmerwohnung. Die Wohnung befindet sich in einem ruhigen und dennoch zentralen Quartier.
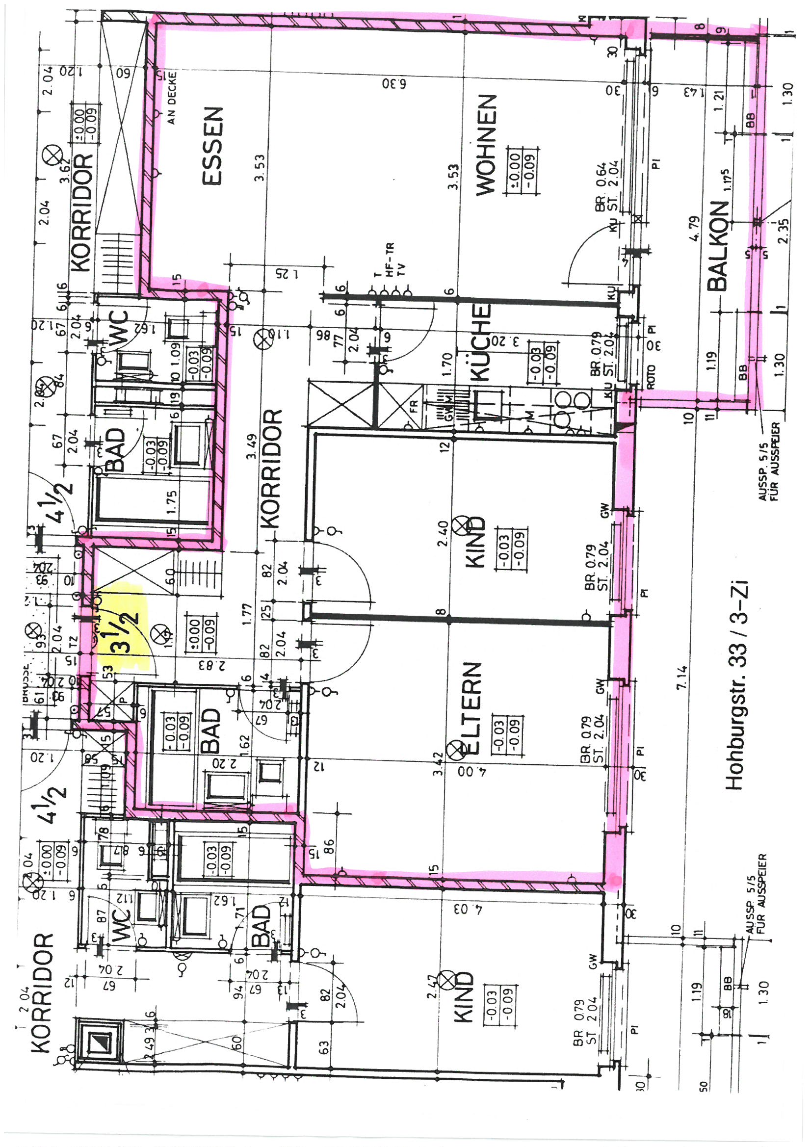
Die Wohnung verfügt über zwei grosse Zimmer. Im Korridor hat es einen praktischen Einbauschrank, welcher zusätzlichen Stauraum bietet. Die Küche ist mit einem Glaskeramikkochfeld und einem Geschirrspüler ausgestattet. Die Zimmer haben Parkettboden und die Küche sowie das Badezimmer schöne Plattenböden. Die Wohnung verfügt über einen Balkon und über ein persönliches Kellerabteil.
In der Liegenschaft ist kein Lift vorhanden. Zudem sind keine Haustiere (Hunde) erlaubt.
Für das Fahrzeug ist ebenfalls gesorgt. Es kann ein Aussenparkplatz für monatlich Fr. 30.00 dazu gemietet werden.
Die Fotos stammen nicht alle aus dieser Wohnung, sie zeigen lediglich den Ausbaustandard.
Haben wir Ihr Interesse geweckt? Wir freuen uns auf Ihre Anfrage!
Die Wohnung verfügt über zwei grosse Zimmer. Im Korridor hat es einen praktischen Einbauschrank, welcher zusätzlichen Stauraum bietet. Die Küche ist mit einem Glaskeramikkochfeld und einem Geschirrspüler ausgestattet. Die Zimmer haben Parkettboden und die Küche sowie das Badezimmer schöne Plattenböden. Die Wohnung verfügt über einen Balkon und über ein persönliches Kellerabteil.
In der Liegenschaft ist kein Lift vorhanden. Zudem sind keine Haustiere (Hunde) erlaubt.
Für das Fahrzeug ist ebenfalls gesorgt. Es kann ein Aussenparkplatz für monatlich Fr. 30.00 dazu gemietet werden.
Die Fotos stammen nicht alle aus dieser Wohnung, sie zeigen lediglich den Ausbaustandard.
Haben wir Ihr Interesse geweckt? Wir freuen uns auf Ihre Anfrage!
Gemeinde
In Belp finden Sie hohe Lebensqualität: Von optimaler Verkehrsanbindung über gute Schulen bis zu vielseitigen Einkaufsmöglichkeiten und diversen Freizeit-Angeboten finden Sie hier (fast) alles. Erholung gibts an und in der Aare, Gürbe oder Giessen, in stillen Wäldern und geheimnisvollen Auen. Die Aussichten auf dem Belpberg und der weite Wolkenhimmel im Belpmoos lassen Gedanken wandern. Die Vielfalt der Gemeinde Belp finden Sie unter Lebensqualität, Kultur und Freizeit, Geschichte, Statistik, Wirtschaft.
Eigenschaften
Umgebung
- Dorf
- Ländlich
- Geschäfte
- Einkaufsmöglichkeiten
- Bank
- Post
- Restaurant(s)
- Bahnhof
- Bushaltestelle
- Autobahnanschluss
- Kinderfreundlich
- Kinderkrippe
- Kindergarten
- Primarschule
- Sekundarschule
- Freibad
- Kino
- Arzt
Aussenbereich
- Balkon(e)
- Ruhige Lage
- Parkplatz
Innenbereich
- Ohne Lift
- Keller
- Einbauschrank
- Hell
- Haustiere nicht gestattet
Ausstattung
- Glaskeramik
- Backofen
- Kühlschrank
- Geschirrspüler
- Gemeinschaftswaschküche
- Badewanne
Boden
- Fliesen
- Parkett
Zustand
- Gut
Distanzen
Bahnhof
684 m
12'
12'
4'
Öffentliche Verkehrsmittel
131 m
8'
8'
3'
Autobahn
2.47 km
35'
35'
18'
Sekundarschule
638 m
14'
14'
3'
Geschäfte
188 m
13'
13'
3'
Flughafen
2.48 km
43'
20'
8'
Post
549 m
8'
8'
2'
Bank
635 m
9'
9'
3'
Restaurants
296 m
7'
7'
2'








